Modern pool villa in Thap Tai Hua Hin – Starting Price Of New 2 storey home

The Proper Hua Hin Hua Hin, Prachuap Khiri Khan
Price: ฿ 10,900,000
Type
Villa
Size
440 Sqm
Bedrooms
5
Bathrooms
6
Details
Reference: LAZ198435
Type: Villa
Interior Size: 440
Land Size: 440Sqm
Price per Sqm: : ฿ 24,773
Bedrooms: 5
Bathrooms: 6

About This Listing

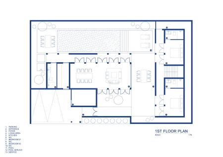
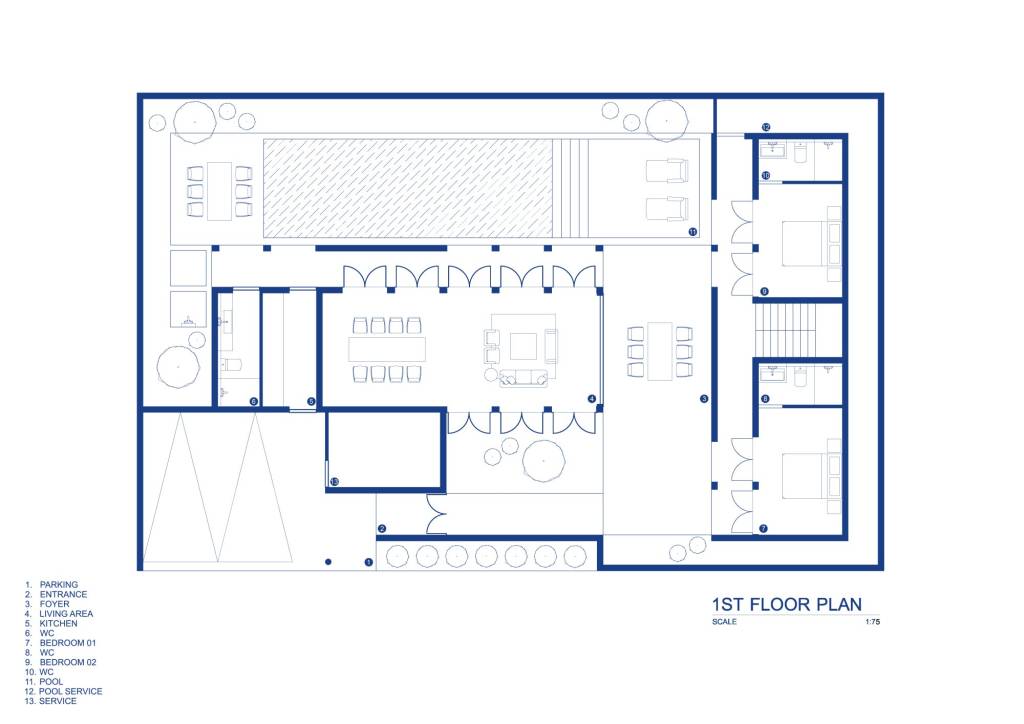
Modern 440 sqm 5 Bedroom Pool Villa in Thap Tai, Hua Hin

This contemporary two-storey villa in The Proper Hua Hin offers a spacious 440 sqm interior and a 440 sqm land plot. The design delivers a bright, open feel with strong indoor-outdoor living and a private swimming pool. It is available on a freehold or leasehold basis.

Professional Overview

The villa presents a modern minimalist aesthetic with clean lines and extensive glazing. Double-height living areas, multiple balconies and a long lap-style pool create a resort-style home. The layout suits larger families or buyers seeking generous guest accommodation.

Key Features and Highlights

The ground floor features an open-plan living and dining space with double-height ceilings and floor-to-ceiling windows. Large glass doors connect directly to the pool terrace for seamless indoor-outdoor living. Neutral tones, wood finishes and contemporary details create a calm, refined atmosphere.

  • Two-storey villa with modern architectural design and minimalist facade
  • Approximate 325 sqm interior space on a 420 sqm land plot
  • Private rectangular swimming pool with lap-style design and shallow sunbathing ledge
  • Extensive poolside terraces with sun loungers and covered seating zones
  • Double-height living room with full-height windows and abundant natural light
  • Open-plan living, dining and kitchen arrangement for social living
  • Contemporary kitchen with island, integrated sink, cooktop and open wooden shelving
  • Designer ceilings with exposed grid pattern and modern pendant lighting
  • Large dining table with seating for family and guests
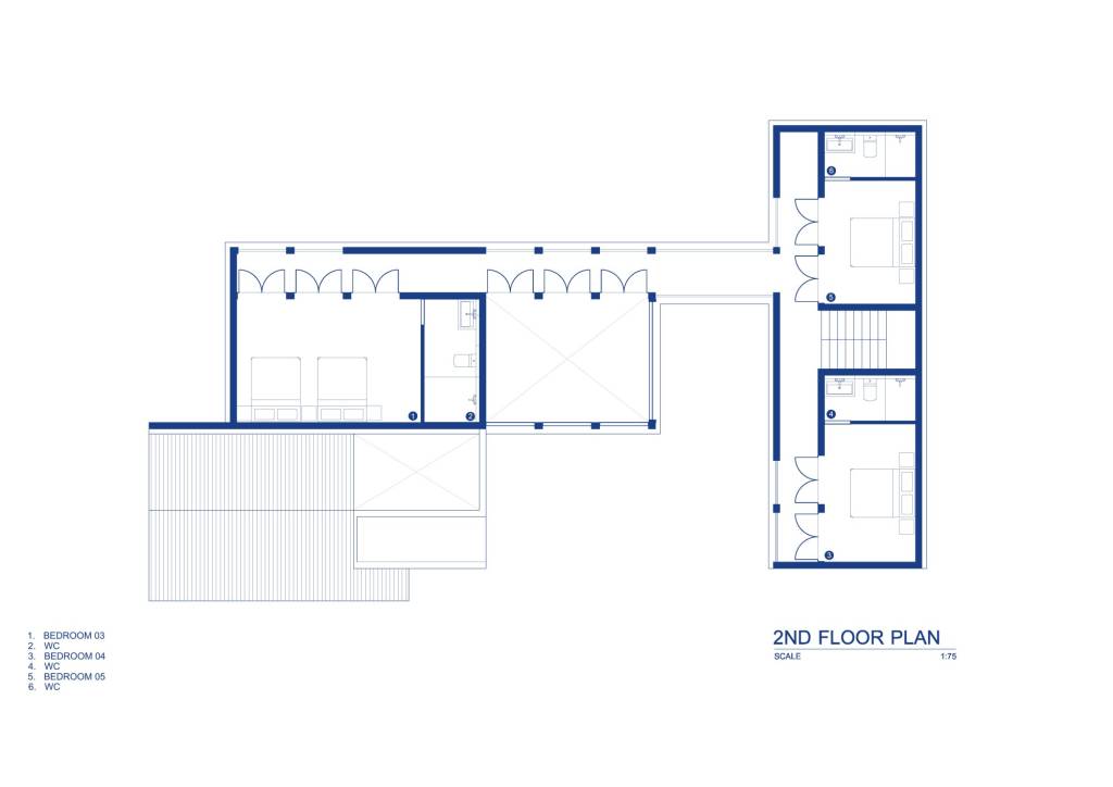
  • 5 bedrooms and 6 modern bathrooms for comfortable multi-room living
  • Modern bathrooms with walk-in showers, rain shower heads and sleek wall-mounted basins
  • Warm-toned tiles, feature orange shower tiles and under-shelf or mirror backlighting
  • Bedrooms with wood-panel feature walls, built-in shelving and open wardrobe rails
  • Ceiling fans and air conditioning units installed in principal rooms
  • Multiple balconies and an upper-level corridor overlooking the living area and pool
  • Rooftop-style terrace with outdoor seating and potted tropical plants
  • Landscaped tropical gardens, mature trees and low-maintenance hardscape
  • High privacy perimeter walls and decorative vertical slatted fencing around the pool
  • Covered carport and paved driveway with off-street parking for multiple cars

Location and Surroundings

The villa is located in Thap Tai, Hua Hin, in the province of Prachuap Khiri Khan. The area offers a peaceful suburban or semi-rural setting with open countryside views. Upper-floor balconies and corridors enjoy outlooks over green fields, trees and distant mountains.

Nearby Area and Lifestyle

The surroundings feel quiet and private with a relaxed residential atmosphere. A dirt access road and natural landscapes sit beyond the privacy walls. The neighborhood suits buyers who value calm living in a modern environment.

Benefits and Appeal Factors

  • New development with only 23 two-floor units in The Proper Hua Hin
  • Modern architecture and fresh interiors with a cohesive design language
  • Generous family-friendly layout with five bedrooms and six bathrooms
  • Strong indoor-outdoor connection ideal for entertaining and everyday enjoyment
  • Private lap pool and sunny terraces for relaxation and exercise
  • Rooftop-style terrace and balconies for additional outdoor living space
  • Freehold or leasehold ownership options for different buyer profiles
  • Low-maintenance tropical landscaping and contemporary hardscaping
  • Quiet setting with countryside and mountain views for a retreat-style feel

This villa in The Proper Hua Hin combines generous space, modern design and a private pool in a peaceful Thap Tai location. It offers a stylish base in Hua Hin with strong lifestyle advantages and flexible ownership choices.

Features
Villa
Property Id: LAZ198435
5 Beds
6 Baths
Updated: 2026-02-25
Plot: 440 Sqm
Plot: 110 sq. wah
Interior: 440 Sqm
No Furnishing
Original Condition
Road Access Available
Garage
Private Pool
Security Guard
Private Garden
Terrace
Mountain View
Western/Euro kitchen
Garden
CCTV/IP Camera
Restaurant
24-hour Security
Garage
Security Guard
Clubhouse
Year completed : 2027-01-01
Floors : 2
Buildings : 1
Total Units : 23

Request more detail on this property

such as floorpans, furniture lists and further specifications